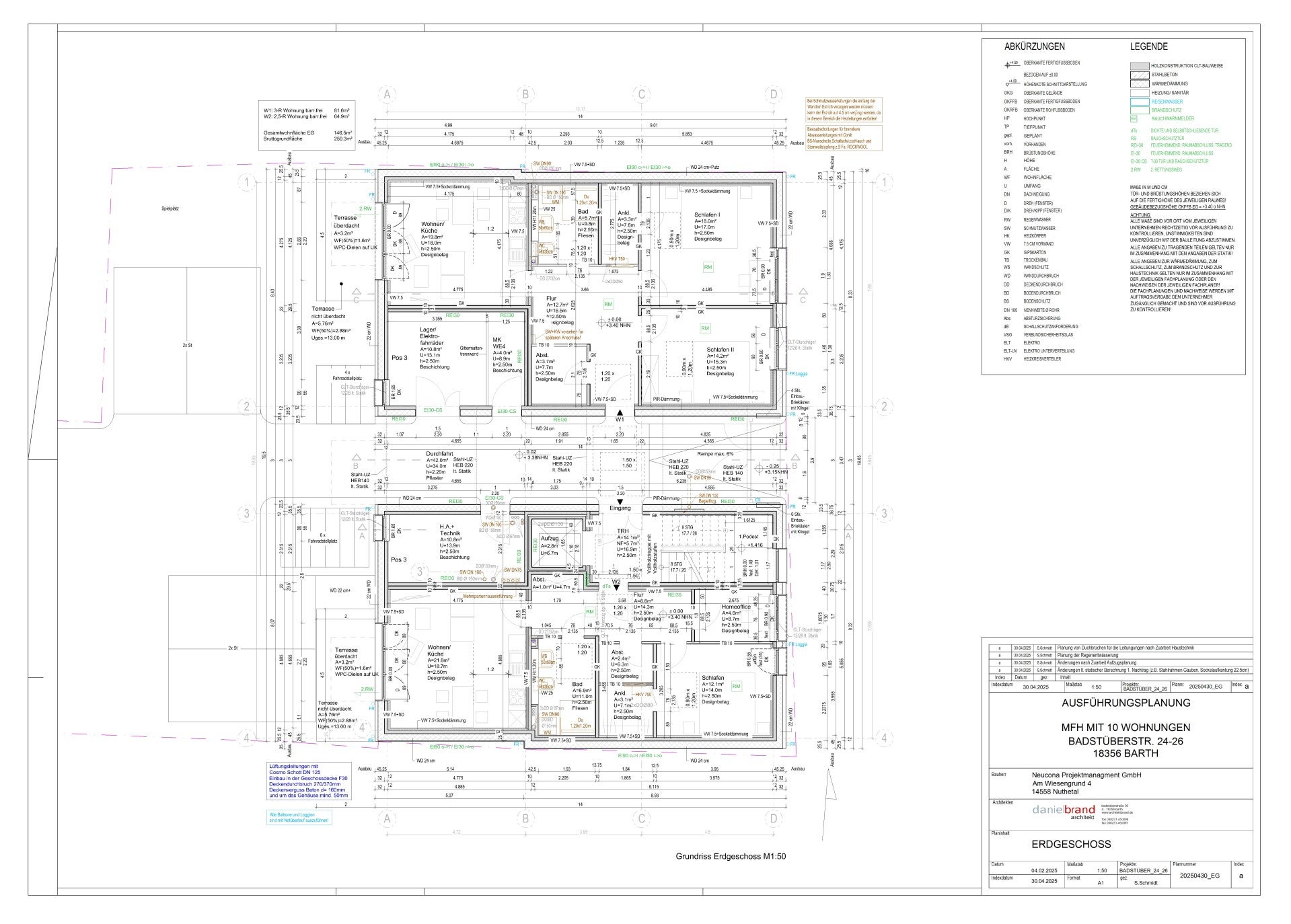
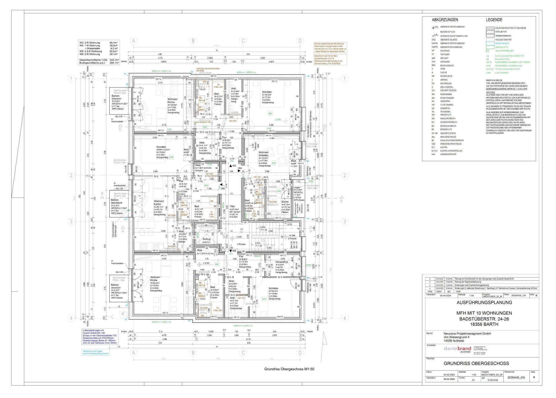
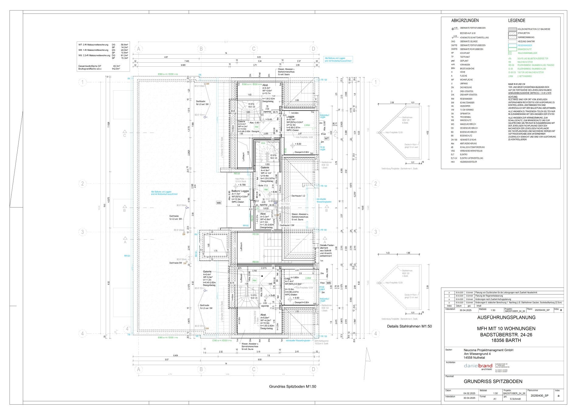
Allgemeine Vorab-Information
Die hier dargestellten Grundrisse geben den Stand der Ausführungsplanung vor Baubeginn wieder.
Erfahrungsgemäß kann es in der Baupahase noch zu minimalen Verschiebungen von nicht tragenden Bauteilen (z.B. innen liegenden Türöffnungen) kommen. Auch einzelne Vorsatzelemente und Installationsschächte können, je nach baulichem Erfordernis, ein wenig "aus dem Plan fallen". Nicht schlimm - am Ende muss das, was gebaut wurde, funktionieren. Das ist es, was zählt.
Daher erstellen wir nach Abschluss der Baumaßnahmen ein Aufmaß, und das ist dann entscheidend für alle möglichen Berechnungen.

Grundriss Erdgeschoss

Grundriss Obergeschoss

Grundriss Dachgeschoss

Grundriss Spitzdach
Anforderung von Unterlagen
Fordern Sie gern eine Mappe mit Planunterlagen, einer Baubeschreibung, einem Kaufvertragsmuster und weiteren Unterlagen bei uns ab.
Erstelle deine eigene Website mit Webador